阳光100城市广场 ..
该小区地理位置优越,交通便利,周边配套齐..
¥85元
中百商圈 精装 双气 多层 带车位地下室顶¥106万
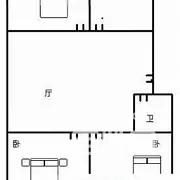
本人从事二手房、新房买卖、租赁,所以对房产业熟悉,同时房源多、信息及时,当然更周到!要买满意的房子,找我是您的选择!房源介绍:1、房屋,采光,户型方正,大H户型,三个卧室朝阳,客厅朝阳,南北通透2、 小区地理位置好,大,3、小区配套设施齐全,,交通介绍: 交通出行便利,,
联系方式
提示:联系我时,请说明在潍坊信息网看到的,谢谢!

















